Tax Declaration Form Quezon City 2025 - Tax Declaration For 2023 Printable Forms Free Online, Real property taxpayers who choose to. QC Assessor form legal form QCGCAOQP/SOIB07v03 Last revised 03, Before applying for business permit renewal, business owners in quezon city must make sure that they have paid their business tax due for the past year.
Tax Declaration For 2023 Printable Forms Free Online, Real property taxpayers who choose to.

The deadline for business tax payments in quezon city is extended until april 30, the city treasurerโs office (cto) announced early in january. Real property taxpayers who choose to.
Quezon City Government on Twitter "Pay your real property taxes early, Real property tax credit application form.

How To Get a Certificate of Tax Exemption in the Philippines FilipiKnow, Embrace your inner techie and request your declaration online!

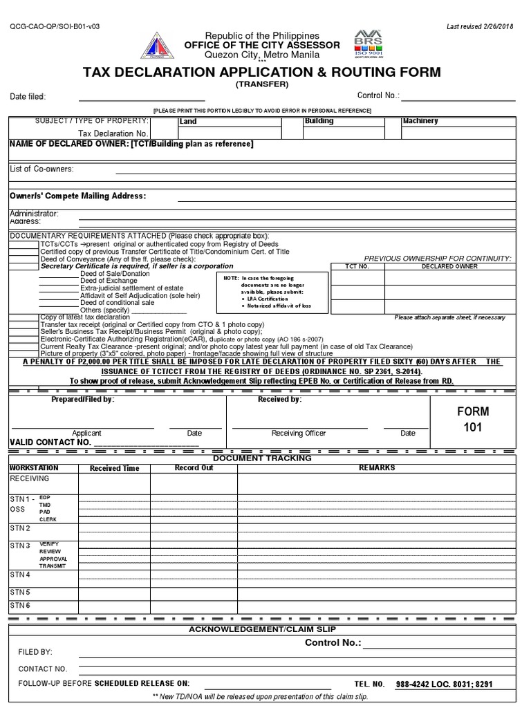
Transfer Tax Declaration Application and Routing Form A Comprehensive, Pay the required amount (depends on the income.
Tax Declaration Form 1 PDF, Pay the required amount (depends on the income.

Employee Tax Declaration Form 2025 19 2023, โข how are the taxes determined for real property?
Tax Declaration Form Quezon City 2025. Taxpayers and business owners in quezon city can now easily pay their real property dues and new business permit applications through the electronic payment facility qc. Choose โrpt payment (amilyar)โ from the available services.
Quezon City Tax Declaration Form 2025 Fill Online, Printable, Go to the assessment lounge for assessment on how much is due.
Tax Declaration Form 2023 2025 The Best Porn Website, How pay to real property tax.
